鋼線
線径 | Φmm | ≦0.99 | 1.00~1.59 | 1.60~2.00 | 2.01~5.00 | ≧5.01 |
|---|---|---|---|---|---|---|
巻取り径 | mm | 300 | 400 | 450 | 610 | 610or760 |
INCH | 12 | 16 | 18 | 24 | 24or30 | |
コイル内径 | mm | 約200 | 約300 | 約350 | 約480 | 約480or650 |
コイル単重 | kg | 15~30 | 25~50 | 30~60 | 40~80 | 60~120 |
キャリア
線径 | Φmm | ≦0.80 | 0.60~1.50 | 1.30~2.00 | 1.80~6.00 | ≧5.00 |
|---|---|---|---|---|---|---|
巻取り径 | INCH | 12 | 16 | 18 | 24 | 30 |
キャリア寸法 | A mm | 230 | 290 | 380 | 470 | 600 |
A mm | 240 | 300 | 390 | 480 | 610 | |
B mm | 900 | 1200 | 900 | 1000 | 1050 | |
C mm | 450 | 650 | 700 | 900 | 1200 | |
標準単重 | kg | 100~150 | 150~300 | 150~300 | 300~500 | 500 |
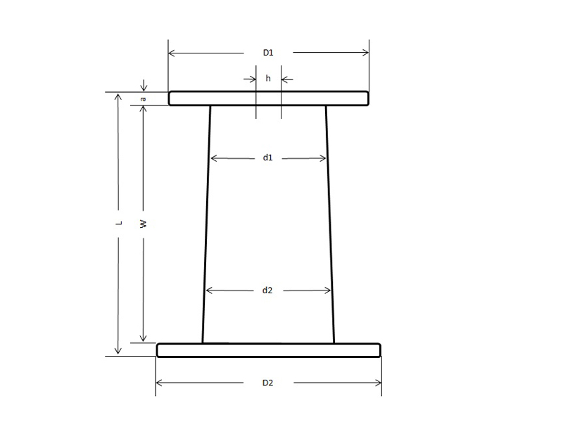
ボビン
名称 | 材質 | 鍔径 | 胴径 | 内巾 | 穴径 | 鍔厚 | 全長 | 重量 | 備考 |
|---|---|---|---|---|---|---|---|---|---|
D1/D2 | d1/d2 | W | h | a | L | ||||
PT-200 | ABS or 合板 | 375/400 | 215/240 | 530 | 100 | 50 | 630 | 9.5kg | 約150kg取り |
PT-60 | ABS | 270/300 | 150/175 | 350 | 45 | 25 | 400 | 2.4kg | 約50kg取り |
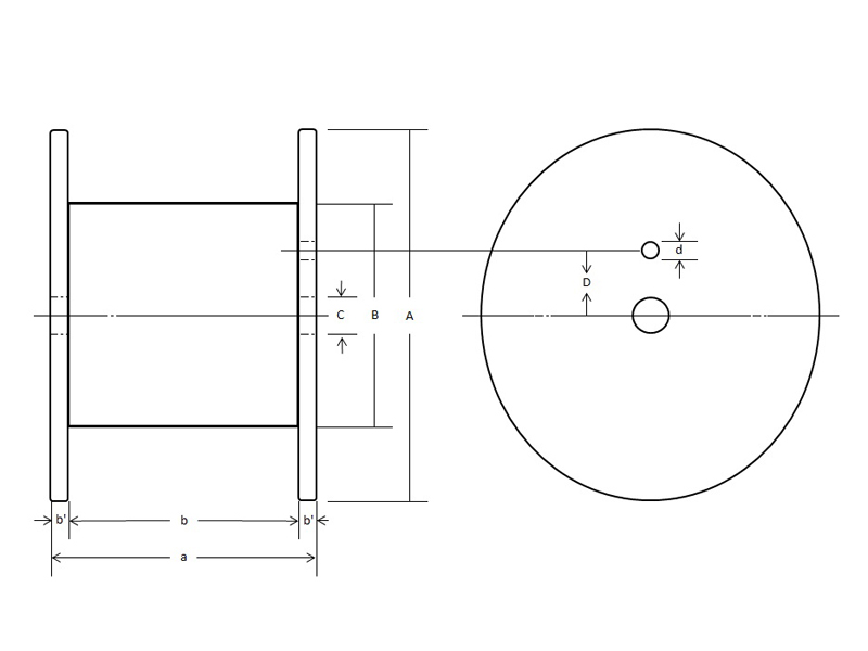
ドラム
名称 | 材質 | A | B | C | a | b | b | D | d | コイル単重 | 線径 |
|---|---|---|---|---|---|---|---|---|---|---|---|
A | 合板+紙管 | 500 | 260 | 47.5 | 250 | 208 | 21 | 80 | 20 | 140kg | 0.6φ~1.6φ |
B | 合板+紙管 | 500 | 230 | 47.5 | 300 | 258 | 21 | 80 | 20 | 200kg | 0.9φ~1.6φ |
P-400 | ABSガラス入 | 400 | 180 | 53.5 | 250 | 200 | 25 | 80 | 40 | 60~80kg | 0.3φ~1.2φ |
異形線
異形棒・磨棒
A 裸結束 1束あたり2~4ヶ所結束
B 紙巻結束 裸結束の上から、梱包用用紙で覆った状態
コイル・キャリア
A 巻内径500mm
B 巻内径600mm
内径 | 外径 | 巻幅 | 単重 | ||
コイル | A | 500 | ~800 | 200 | 250kg~ |
B | 600 | ~800 | 400 | 250kg~ | |
キャリア | 高さ | ||||
500~ | ~900 | 1010 | 250kg~ |
穴内径 | 外径 | ドラム幅 | ドラム単重(自重) | |
A (S) | 110 | 1000 | 225 | 150kg |
B(L) | 570 | 1200 | 400 | 250kg |
木箱梱包可能です。別途木箱が必要な場合もございます。
薫蒸処理済の木箱も手配いたします